TIếNG VIệT

THÔNG BÁO MỜI THẦU “CẢI TẠO CHUYỂN ĐỔI KHU VỰC CANTEEN”

Ngày 28.01.2026
Qua Admin

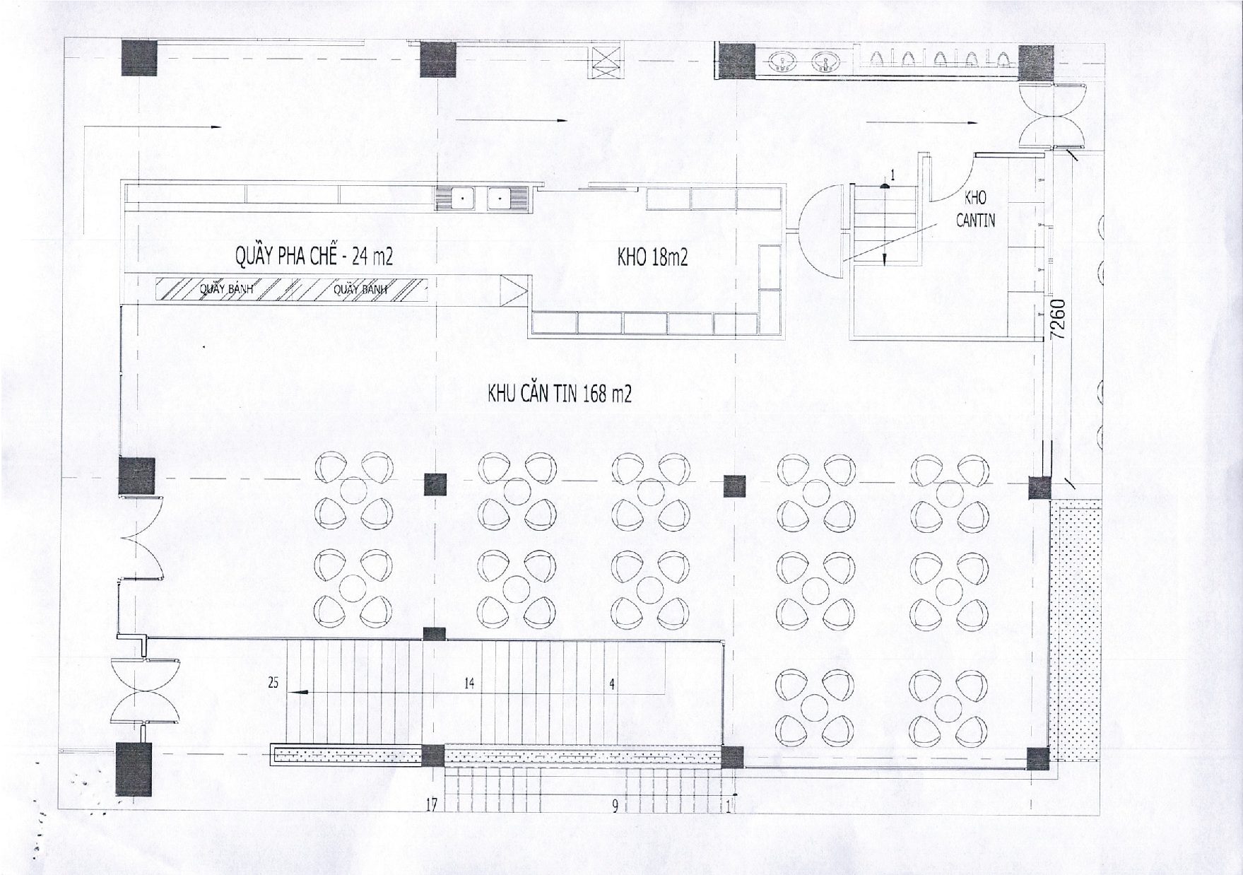
Công ty Cổ phần Bệnh viện Đồng Nai -2 là chủ dự án Bệnh viện Đồng Nai -2, địa chỉ số 2 đường Đồng Khởi, P. Tam Hiệp, tỉnh Đồng Nai. Hiện nay, Công ty chúng tôi đang triển khai mời thầu “CẢI TẠO CHUYỂN ĐỔI KHU VỰC CANTEEN” tại Bệnh viện.

Kính mời Quý đối tác quan tâm cùng xem chi tiết nội dung trong Thư mời thầu sau đây:

TIN TỨC

Tin tức Hoạt động

Ngày 09.03.2026

THÔNG BÁO MỜI THẦU “CUNG CẤP VÀ LẮP ĐẶT HỆ THỐNG CAMERA TẬP TRUNG”

Công ty chúng tôi đang triển khai mời thầu “CUNG CẤP VÀ LẮP ĐẶT HỆ THỐNG CAMERA TẬP TRUNG” tại Bệnh viện

Ngày 06.03.2026

THÔNG BÁO MỜI THẦU “CUNG CẤP BUỒNG ĐO THÍNH LỰC, MÁY ĐO THÍNH LỰC ĐƠN ÂM, MÁY ĐO NHĨ LƯỢNG VÀ PHẢN XẠ CƠ BÀN ĐẠP”

Công ty chúng tôi đang triển khai mời thầu “CUNG CẤP BUỒNG ĐO THÍNH LỰC, MÁY ĐO THÍNH LỰC ĐƠN ÂM, MÁY ĐO NHĨ LƯỢNG VÀ PHẢN XẠ CƠ BÀN ĐẠP” tại Bệnh viện

Ngày 06.02.2026

THÔNG BÁO MỜI THẦU “CUNG CẤP HÓA CHẤT VÀ THIẾT BỊ XÉT NGHIỆM HƠI THỞ PHÁT HIỆN VI KHUẨN HP”

Công ty chúng tôi đang triển khai mời thầu “CUNG CẤP HÓA CHẤT VÀ THIẾT BỊ XÉT NGHIỆM HƠI THỞ PHÁT HIỆN VI KHUẨN HP” tại Bệnh viện.

Ngày 06.02.2026

THÔNG BÁO MỜI THẦU “CUNG CẤP HÓA CHẤT XÉT NGHIỆM VÀ TRANG THIẾT BỊ XÉT NGHIỆM”

Công ty chúng tôi đang triển khai mời thầu “CUNG CẤP HÓA CHẤT XÉT NGHIỆM VÀ TRANG THIẾT BỊ XÉT NGHIỆM” tại Bệnh viện